Mieszkanie ul. Urbanistów 12
Urbanistów 12, Julianów, mazowieckie
- 579 313 zł
- 37,98 m²
- 15 253,11 zł/m²
Biuro sprzedaży
Skontaktuj się
Mieszkanie ul. Urbanistów 12
Urbanistów 12, Julianów, mazowieckie
zaktualizowane:
19 lutego 2026
Mieszkanie ul. Urbanistów 12
Inwestycja: Miasteczko Julianów
Zaktualizowane: 19 lutego 2026
579 313 zł 37,98 m² 15 253,11 zł/m²
oddana do użytku
3/3
2
-
deweloperski
Zobacz na mapie
Stan inwestycji:
oddana do użytkuPiętro:
3/3Liczba pokoi:
2Miejsce postojowe:
-Stan mieszkania:
deweloperskiSzczegóły ogłoszenia
- Typ oferty: mieszkanie na sprzedaż
- Cena: 579 313 zł (15 253,11 zł/m²)
- Termin realizacji: IV kwartał 2025, oddana do użytku
- Status oferty: dostępne
- Rynek: pierwotny (oferta dewelopera)
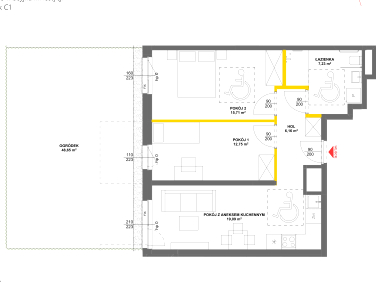
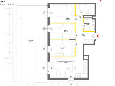
- Charakterystyka mieszkania: 37,98 m², 2 pokoje, 1 łazienka; stan: deweloperski
- Budynek: blok mieszkalny
- winda
- Rozkład mieszkania: piętro 3/3, jednopoziomowe
- Powierzchnia dodatkowa: balkon (4,7 m²)
- Kuchnia: aneks kuchenny
- Źródło: oferta dewelopera: Grupa Victoria Dom, zaktualizowane: 19.02.2026
- sygnatura ogłoszenia: 177C
Lokalizacja
- Inwestycja: Miasteczko Julianów
- Adres: Urbanistów 12, Julianów, mazowieckie
- Otoczenie: osiedle bloków mieszkalnych, tereny zielone i rekreacyjne
- W pobliżu żłobek, przedszkole, szkoła podstawowa, szkoła średnia, przystanek autobusowy, supermarket, las kabacki
Opis nieruchomości
Zapraszamy do zapoznania się z ofertą 2-pokojowego mieszkania, składającego się z pokoju dziennego z aneksem kuchennym, sypialni, łazienki i balkonu. (...)

Inwestycja realizowana przez:
Grupa Victoria Dom
Biuro sprzedaży
Urbanistów 16
Julianów k. Piaseczna 05-500
| MieszkanieC1/1 | 60,94 m² | 13 999,16 zł/m² | parter/3 | 3 | 853 109 zł |
| Mieszkanie | ||||
|
||||
| C1/1 |
| MieszkanieC1/3 | 28,70 m² | 16 578,57 zł/m² | parter/3 | 1 | 475 805 zł |
| Mieszkanie | ||||
|
||||
| C1/3 |
| MieszkanieC1/5 | 36,97 m² | 14 902,33 zł/m² | parter/3 | 2 | 550 939 zł |
| Mieszkanie | ||||
|
||||
| C1/5 |
| MieszkanieC1/7 | 36,90 m² | 14 890,65 zł/m² | parter/3 | 2 | 549 465 zł |
| Mieszkanie | ||||
|
||||
| C1/7 |
| MieszkanieC1/8 | 46,90 m² | 14 455,01 zł/m² | parter/3 | 3 | 677 940 zł |
| Mieszkanie | ||||
|
||||
| C1/8 |
| MieszkanieC1/9 | 71,72 m² | 13 385,32 zł/m² | parter/3 | 4 | 959 995 zł |
| Mieszkanie | ||||
|
||||
| C1/9 |
| MieszkanieC1/10 | 58,19 m² | 13 972,40 zł/m² | parter/3 | 3 | 813 054 zł |
| Mieszkanie | ||||
|
||||
| C1/10 |
| MieszkanieC1/11 | 36,28 m² | 14 600 zł/m² | 1/3 | 1 | 529 688 zł |
| Mieszkanie | ||||
|
||||
| C1/11 |
| MieszkanieC1/12 | 41,65 m² | 14 400 zł/m² | 1/3 | 2 | 599 760 zł |
| Mieszkanie | ||||
|
||||
| C1/12 |
| MieszkanieC1/13 | 48,52 m² | 14 200 zł/m² | 1/3 | 2 | 688 984 zł |
| Mieszkanie | ||||
|
||||
| C1/13 |
Biuro sprzedaży
22 123 07...
22 123 07 40










